太宰府市第1石坂 1号棟 新築戸建(売買 新築一戸建て) | 太宰府市石坂 | 糟屋郡周辺の不動産探しは ヤマダ不動産 福岡志免店

太宰府市第1石坂 1号棟 新築戸建 | 太宰府市石坂の不動産物件

10万円分の「全国のヤマダデンキで使えるポイント」or「JCBギフトカード」or「65インチTV」or「空気清浄機・ダイソンドライヤー等の家電」or「6畳用エアコン」or「ヤマダデンキ特別優待割引券」≪限定1品≫プレゼント☆
さらに、ご購入相談で来店後、Google口コミ投稿で2000円分のQUOカードプレゼント!※一世帯2回まで
土日祝日もご案内可能です^^
是非一度「ヤマダ不動産」へご相談ください!あらゆる不安や疑問に誠心誠意お応えします^^
安心安全オール電化♪LDK18.5帖☆駐
【新築一戸建て】 新築 駐車場あり オール電化
価格 3,699万円 (税込)
西日本鉄道太宰府線 太宰府駅 徒歩15分
スマホ表示
物件コード:121304
所在地 建物面積
土地面積
間取り 築年月
福岡県太宰府市石坂2丁目 98.01m2
168.06m2
3LDK 2026/03

物件基本情報

▲シンプルで飽きのこない外観デザイン。新生活におススメな物件をご紹介させていただきます^^是非お問合せ下さい^^
▲家族の会話が増えるリビング階段採用^^バルコニー2カ所。主寝室はたっぷり収納スペースを確保。
物件種目 新築一戸建て
物件名称 太宰府市第1石坂 1号棟 新築戸建
所在地 福岡県太宰府市石坂2丁目
交通
西日本鉄道太宰府線 太宰府駅 徒歩15分
西日本鉄道太宰府線 西鉄五条駅 徒歩14分
階数 2階建
建物構造 木造
建ぺい率/容積率 50% / 80%
駐車場 有 (2台)
学校 太宰府市東小学校 / 太宰府中学校
設備・条件
  • 汚水:その他
  • 水道:公営水道
  • TVドアホン
  • Wクローゼット
  • 追い焚き
  • オール電化
  • 洗浄便座
  • シャンプードレッサー
  • バリアフリー
  • 浴室1坪以上
  • 床下収納
  • 浴室乾燥機
  • オートバス
  • 住宅性能保証付
  • カウンターキッチン
  • IHクッキングヒーター
  • コンロ三口
  • システムキッチン
  • バス・トイレ別
ヤマダ不動産 福岡志免店
Tel092-600-1215
お気軽にお問い合わせください。

画像・写真

  • 1号棟。駐車スペースは2台分確保^^
    1号棟。駐車スペースは2台分確保^^
  • 広々した前面道路は、交通量も少なく小さなお子様も安心。全2区画の新築戸建が新登場です。完成をお楽しみに^^
    広々した前面道路は、交通量も少なく小さなお子様も安心。全2区画の新築戸建が新登場です。完成をお楽しみに^^
  • 前面道路は公道南側約6.06m、西側約4.83m。幅広いため車の離合や駐車がスムーズです^^角地で日当たり、風通しも良好^^
    前面道路は公道南側約6.06m、西側約4.83m。幅広いため車の離合や駐車がスムーズです^^角地で日当たり、風通しも良好^^
  • 駐車スペースは2台分確保^^ご夫婦で1台ずつ所有出来ます^^
    駐車スペースは2台分確保^^ご夫婦で1台ずつ所有出来ます^^
  • 家具・家電はイメージCG画像です。家族が集まる開放的なリビング。18.5帖の大空間で毎日のお食事が楽しみです^^思い思いの時間を過ごしたり、家族みんなで食事をしたり、素敵な団らんの場になりますね。
    家具・家電はイメージCG画像です。家族が集まる開放的なリビング。18.5帖の大空間で毎日のお食事が楽しみです^^思い思いの時間を過ごしたり、家族みんなで食事をしたり、素敵な団らんの場になりますね。
  • 大きな窓のあるリビングは、陽光あふれる明るい空間です。居心地良く、ご家族皆がゆったり寛げる憩いの空間となりそうです。
    大きな窓のあるリビングは、陽光あふれる明るい空間です。居心地良く、ご家族皆がゆったり寛げる憩いの空間となりそうです。
  • 対面式カウンターキッチンでお子様の様子が見守れます。カウンタートップは耐熱性に優れており、日ごろのお掃除もふき取るだけでOK。ステンレスシンクも簡単にお掃除できますよ。
    対面式カウンターキッチンでお子様の様子が見守れます。カウンタートップは耐熱性に優れており、日ごろのお掃除もふき取るだけでOK。ステンレスシンクも簡単にお掃除できますよ。
  • 広々とした凸型シンクに洗剤ポケットを標準装備。大きなお鍋など洗いやすいです。洗剤や石鹸、スポンジもすっきりできる収納付き。
    広々とした凸型シンクに洗剤ポケットを標準装備。大きなお鍋など洗いやすいです。洗剤や石鹸、スポンジもすっきりできる収納付き。
  • お手入れのしやすいIHクッキングヒーターです。 3口コンロなので、効率よくお料理が楽しめます。毎日のお料理も楽しくなりますね^^
    お手入れのしやすいIHクッキングヒーターです。 3口コンロなので、効率よくお料理が楽しめます。毎日のお料理も楽しくなりますね^^
  • 調理により発生する油煙や臭いを吸い込み、屋外へ排気してくれます。
    調理により発生する油煙や臭いを吸い込み、屋外へ排気してくれます。
  • 1日の疲れを癒すくつろぎのバスルーム。足を伸ばしてもゆったりと入れるサイズです。お子様と一緒にお風呂に入っても狭くないですね^^
    1日の疲れを癒すくつろぎのバスルーム。足を伸ばしてもゆったりと入れるサイズです。お子様と一緒にお風呂に入っても狭くないですね^^
  • 温水洗浄機付トイレです。節水機能もあるので、安心して使えますね。もちろん、1階2階の2ヶ所にトイレがあるので、忙しい朝にもゆとりができますね。
    温水洗浄機付トイレです。節水機能もあるので、安心して使えますね。もちろん、1階2階の2ヶ所にトイレがあるので、忙しい朝にもゆとりができますね。
  • 三面鏡つき洗面台。収納も一体型になっているので、ドライヤーやヘアアイロンの置き場に困りませんね。
    三面鏡つき洗面台。収納も一体型になっているので、ドライヤーやヘアアイロンの置き場に困りませんね。
  • たっぷり収納できるシューズボックスです。家族全員の靴がきれいに整頓できます。棚の上にお花や写真を飾っても良いですね。
    たっぷり収納できるシューズボックスです。家族全員の靴がきれいに整頓できます。棚の上にお花や写真を飾っても良いですね。
  • リビングからの続き間として畳コーナーをご用意しました。
    リビングからの続き間として畳コーナーをご用意しました。
  • ご年配の方でも安心できる、手すり付き階段です^^段差も低めで設定されてますので安全性にも優れてますね^^
    ご年配の方でも安心できる、手すり付き階段です^^段差も低めで設定されてますので安全性にも優れてますね^^
  • 住む人のこだわりを活かす洋室^^日当たりがよく、寝室としての利用もおすすめ。広めのクローゼットもあり荷物もすっきり片付けれ、ゆとりのある暮らしが出来ます^^
    住む人のこだわりを活かす洋室^^日当たりがよく、寝室としての利用もおすすめ。広めのクローゼットもあり荷物もすっきり片付けれ、ゆとりのある暮らしが出来ます^^
  • 2面採光を確保した明るい室内は、風通しも良く、大変居心地の良い空間となっております。爽やかな風を感じて起きる朝は、快適生活の始まりに。
    2面採光を確保した明るい室内は、風通しも良く、大変居心地の良い空間となっております。爽やかな風を感じて起きる朝は、快適生活の始まりに。
  • 木目調のシンプルデザインで落ち着きと安らぎの空間に仕上げています。各部屋に収納が完備されているので、お荷物が多くなっても安心の設計です。
    木目調のシンプルデザインで落ち着きと安らぎの空間に仕上げています。各部屋に収納が完備されているので、お荷物が多くなっても安心の設計です。
  • 南側に面したバルコニーは日当たり良好です。お洗濯物も気持ちよく干せそうです。
    南側に面したバルコニーは日当たり良好です。お洗濯物も気持ちよく干せそうです。
  • かざすだけで開閉できる、タッチキー採用の玄関。お買い物帰りで、両手がふさがってきても簡単に中に入れます^^
    かざすだけで開閉できる、タッチキー採用の玄関。お買い物帰りで、両手がふさがってきても簡単に中に入れます^^
  • 雨の日の洗濯も安心できる浴室暖房乾燥機付き浴室。リモコンで操作もボタン1つで簡単。 浴室暖房乾燥機には、暖房、乾燥、涼風、換気の4つの機能が付いています。タイマー付きです。
    雨の日の洗濯も安心できる浴室暖房乾燥機付き浴室。リモコンで操作もボタン1つで簡単。 浴室暖房乾燥機には、暖房、乾燥、涼風、換気の4つの機能が付いています。タイマー付きです。
  • 防犯性もばっちり、TVモニター付きインターフォン完備。大きなモニターで玄関先を確認できます。録画機能が付いているので不在時の訪問者も確認できて安心です^^
    防犯性もばっちり、TVモニター付きインターフォン完備。大きなモニターで玄関先を確認できます。録画機能が付いているので不在時の訪問者も確認できて安心です^^
  • キッチン横からお湯張り、追い炊き、足し湯がボタン一つで楽々操作できる給湯機リモコンです^^忙しい夕飯の準備の時間帯に重宝しますね。
    キッチン横からお湯張り、追い炊き、足し湯がボタン一つで楽々操作できる給湯機リモコンです^^忙しい夕飯の準備の時間帯に重宝しますね。
  • ローソン 太宰府五条二丁目店
    ローソン 太宰府五条二丁目店
  • ファミリーマート 太宰府五条駅前
    ファミリーマート 太宰府五条駅前
  • ジョイント太宰府店
    ジョイント太宰府店
  • にしてつストアレガネット太宰府
    にしてつストアレガネット太宰府
  • 大賀薬局五条店
    大賀薬局五条店
  • ベスト電器 アウトレット太宰府店
    ベスト電器 アウトレット太宰府店
  • 別府病院
    別府病院
  • 太宰府市役所
    太宰府市役所
  • 太宰府市立太宰府東小学校
    太宰府市立太宰府東小学校
  • 太宰府市立太宰府中学校
    太宰府市立太宰府中学校

コメント

安心安全オール電化♪LDK広々18.5帖☆並列駐車2台♪2面バルコニー・畳コーナー有!リビング階段♪

■オール電化の4LDK♪駐車スペースは2台分確保^^
■LDKは約18帖あり、隣接する畳コーナーと繋げて広々と使用できます^^
■南向きの主寝室は日当たり良好☆
■西鉄太宰府線「西鉄五条」駅より徒歩約13分♪(約1km)
◇太宰府市東小学校:徒歩約9分
◇太宰府中学校:徒歩約15分

☆年間1600件の相談実績☆
頭金0円可能!月々の返済がご不安な方!もっと良い条件を引き出したい方!すでにお借入のある方!など、住宅ローンのお悩みをこれまでにたくさんお受けしてきました^^
お客様に合った金融機関のご提案や、将来を見越した無理のないご返済プランの作成もしています!ぜひ一度ご相談下さい^^

周辺地図

地図を表示中...
ストリートビュー未対応エリアです。

物件詳細情報

物件用途 居住用 地目 宅地
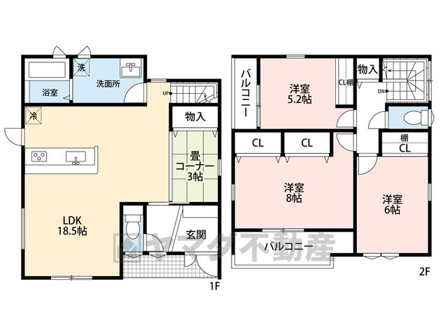
間取り詳細 LDK18.5畳(1F)、その他3畳(1F)、洋8畳(2F)、洋6畳(2F)、洋5.2畳(2F) 都市計画 -
建物向き - 用途地域 第一種低層住居専用地域
土地面積基準 実測 接道 公道 南 幅員6m
公道 西 幅員4.8m
土地権利 所有権 私道面積 -
借地条件 - 道路位置指定 -
地代 - 不適合接道 -
建築確認番号 - セットバック -
現況 空家 国土法届出 不要
引渡時期 即引き渡し可 取引態様 仲介
設備その他 -
特記事項 -
備考 -
情報更新日 2026/04/20 広告有効期限 2026/05/21
電話でお問い合わせ
ヤマダ不動産 福岡志免店 店舗情報
[所在地] 福岡県糟屋郡志免町志免中央4丁目2番3号
[営業時間] 10:00~19:00(定休日:水曜日)
Tel092-600-1215
お気軽にお問い合わせください。