アイランドタワースカイクラブC棟 中古マンション 4階(売買 中古マンション) | 福岡市東区香椎照葉 | 糟屋郡周辺の不動産探しは ヤマダ不動産 福岡志免店

アイランドタワースカイクラブC棟 中古マンション 4階 | 福岡市東区香椎照葉の不動産物件

20万円分の「全国のヤマダデンキで使えるポイント」or「JCBギフトカード」or「65インチTV」or「空気清浄機・ダイソンドライヤー等の家電」or「6畳用エアコン」or「ヤマダデンキ特別優待割引券」≪限定1品≫プレゼント☆
さらに、ご購入相談で来店後、Google口コミ投稿で2000円分のQUOカードプレゼント!※一世帯2回まで
土日祝日もご案内可能です^^
是非一度「ヤマダ不動産」へご相談ください!あらゆる不安や疑問に誠心誠意お応えします^^
ペット飼育可能◎敷地内駐車場空き有!バル
【中古マンション】 駐車場あり ペット
価格 3,500万円 (税込)
西日本鉄道貝塚線 香椎花園前駅 徒歩30分
スマホ表示
物件コード:118313
所在地 管理費 専有面積
バルコニー面積
間取り
所在階
築年月
福岡県福岡市東区香椎照葉3丁目 17,200円 82.31m2
19.21m2
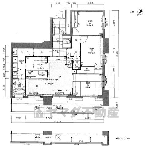
3LDK
4階
2008/07

物件基本情報

▲2025年11月現在 ペット飼育可能^^敷地内駐車場空きあり^^
▲リビング約12帖とキッチン3.5帖、大きな窓があり緑溢れる景色が交わる空間です^^
物件種目 中古マンション
物件名称 アイランドタワースカイクラブC棟 中古マンション
所在地 福岡県福岡市東区香椎照葉3丁目
交通
西日本鉄道貝塚線 香椎花園前駅 徒歩30分
西日本鉄道貝塚線 西鉄香椎駅 徒歩34分
修繕積立金 13,200円
所在階/階数 4階 / 41階建
総戸数 409戸
建物構造 鉄骨鉄筋コンクリート造
駐車場 空有 5,500円 (税込)
学校 福岡市立照葉小学校 / 福岡市立照葉中学校
設備・条件
  • エレベーター
  • オートロック
  • 宅配ボックス
  • TVドアホン
  • Wクローゼット
  • 追い焚き
  • 給湯器
  • 洗浄便座
  • 洗濯機置場
  • 床暖房
  • ペット相談
  • カウンターキッチン
  • 室内洗濯機置場
  • コンロ三口
  • システムキッチン
  • バルコニー
  • バス・トイレ別
ヤマダ不動産 福岡志免店
Tel092-600-1215
お気軽にお問い合わせください。

画像・写真

  • 現地からの眺望(2025年11月)撮影
    現地からの眺望(2025年11月)撮影
  • 現地からの眺望(2025年11月)撮影
    現地からの眺望(2025年11月)撮影
  • 対面式カウンターキッチンでお子様の様子が見守れます。カウンタートップは耐熱性に優れており、日ごろのお掃除もふき取るだけでOK。もちろんリフォームも可能です。
    対面式カウンターキッチンでお子様の様子が見守れます。カウンタートップは耐熱性に優れており、日ごろのお掃除もふき取るだけでOK。もちろんリフォームも可能です。
  • 対面式キッチンを中心としたリビングダイニングで家族の会話が弾みそうです。リビングは広々とした設計で、家族が集い、寛ぐ暮らしの空間を演出しています。
    対面式キッチンを中心としたリビングダイニングで家族の会話が弾みそうです。リビングは広々とした設計で、家族が集い、寛ぐ暮らしの空間を演出しています。
  • レバーシャワーで引き出して使用できます。収納もついていて、ドライヤーやヘアアイロンの置き場に困りませんね。
    レバーシャワーで引き出して使用できます。収納もついていて、ドライヤーやヘアアイロンの置き場に困りませんね。
  • 大きな窓のある和室は、陽光あふれる明るい空間です。居心地良く、ご家族皆がゆったり寛げる憩いの空間となりそうです。
    大きな窓のある和室は、陽光あふれる明るい空間です。居心地良く、ご家族皆がゆったり寛げる憩いの空間となりそうです。
  • お洗濯物も気持ちよく干せそうです。 テーブルとイスを置いてカフェタイムや日光浴、星を眺めたりも良いですね^^
    お洗濯物も気持ちよく干せそうです。 テーブルとイスを置いてカフェタイムや日光浴、星を眺めたりも良いですね^^
  • 将来にわたって住みやすくプランニングを重ねて設計された間取で日々の生活をしやすい導線を考えた居住空間を創り上げております^^
    将来にわたって住みやすくプランニングを重ねて設計された間取で日々の生活をしやすい導線を考えた居住空間を創り上げております^^
  • 収納力豊富なシューズクローゼット付き。1箇所にまとめてスッキリ美しい収納を実現します^^
    収納力豊富なシューズクローゼット付き。1箇所にまとめてスッキリ美しい収納を実現します^^
  • たっぷり収納できるシューズボックスございます。家族全員の靴がきれいに整頓できます。
    たっぷり収納できるシューズボックスございます。家族全員の靴がきれいに整頓できます。
  • 明るい洋室です。ナチュラル色のフローリングで開放的な優しい雰囲気になっています^^ベッドや机、TVを置いてもゆとりのある広さです。
    明るい洋室です。ナチュラル色のフローリングで開放的な優しい雰囲気になっています^^ベッドや机、TVを置いてもゆとりのある広さです。
  • ハンガーパイプ付で散らかりがちな洋服類もきれいに整理できます。使用頻度が少ないものは枕棚の上に、足元には3段ボックスを置いて、フル活用できるクローゼットです^^
    ハンガーパイプ付で散らかりがちな洋服類もきれいに整理できます。使用頻度が少ないものは枕棚の上に、足元には3段ボックスを置いて、フル活用できるクローゼットです^^
  • 節水・静音設計でエネルギーを効率よく使用し省エネ。汚れをガードする構造でサッと一拭き、お手入れが簡単。手洗いと収納付き。
    節水・静音設計でエネルギーを効率よく使用し省エネ。汚れをガードする構造でサッと一拭き、お手入れが簡単。手洗いと収納付き。
  • 1日の疲れを癒すくつろぎのバスルーム。 リラックスできるバスタイムを過ごせます。 雨の日の洗濯も安心できる浴室暖房乾燥機付き浴室。窓もついています。
    1日の疲れを癒すくつろぎのバスルーム。 リラックスできるバスタイムを過ごせます。 雨の日の洗濯も安心できる浴室暖房乾燥機付き浴室。窓もついています。
  • 防犯性もばっちり、TVモニター付きインターフォン完備。大きなモニターで玄関先を確認できます。録画機能が付いているので不在時の訪問者も確認できて安心です^^
    防犯性もばっちり、TVモニター付きインターフォン完備。大きなモニターで玄関先を確認できます。録画機能が付いているので不在時の訪問者も確認できて安心です^^
  • ローソン 福岡アイランドシティ店
    ローソン 福岡アイランドシティ店
  • ファミリーマート 福岡香椎照葉四丁目
    ファミリーマート 福岡香椎照葉四丁目
  • スーパーセンタートライアル アイランドシティ店
    スーパーセンタートライアル アイランドシティ店
  • アイランド アイ
    アイランド アイ
  • 福岡みらい病院
    福岡みらい病院
  • イオンモール香椎浜
    イオンモール香椎浜
  • 福岡市立照葉小中学校
    福岡市立照葉小中学校
  • 第1アイランドシティコスモス保育園
    第1アイランドシティコスモス保育園
  • ウエルシア福岡香椎浜店
    ウエルシア福岡香椎浜店
  • 香椎浜中央公園
    香椎浜中央公園

コメント

ペット飼育可能◎敷地内駐車場空きあり!ワイドバルコニー・和室・シューズインクローゼット有♪眺望良好☆
☆窓から広がる、四季の移ろいを感じられる公園が眺望できます♪
◇緑あふれる開放感のある住環境!!
◇周辺環境も良く快適な暮らしを実現できます。
リフォームプランと合わせてサポートいたします。
■ペット飼育(飼育細則あり)

☆年間1600件の相談実績☆
頭金0円可能!月々の返済がご不安な方!もっと良い条件を引き出したい方!すでにお借入のある方!など、住宅ローンのお悩みをこれまでにたくさんお受けしてきました^^
お客様に合った金融機関のご提案や、将来を見越した無理のないご返済プランの作成もしています!

周辺地図

地図を表示中...
ストリートビュー未対応エリアです。

物件詳細情報

物件用途 居住用 土地面積 -
間取り詳細 LDK11.8畳、和6畳、洋5.9畳、洋5.8畳 土地権利 所有権
部屋の向き - 地目 その他
専有面積基準 壁芯 都市計画 -
施工会社 - 用途地域 指定なし
現況 空家 国土法届出 不要
引渡時期 即引き渡し可 取引態様 仲介
設備その他 -
特記事項 -
備考 -
情報更新日 2026/04/01 広告有効期限 2026/05/02
電話でお問い合わせ
ヤマダ不動産 福岡志免店 店舗情報
[所在地] 福岡県糟屋郡志免町志免中央4丁目2番3号
[営業時間] 10:00~19:00(定休日:水曜日)
Tel092-600-1215
お気軽にお問い合わせください。