飯塚市幸袋 3号地 新築戸建(売買 新築一戸建て) | 飯塚市幸袋 | 糟屋郡周辺の不動産探しは ヤマダ不動産 福岡志免店

飯塚市幸袋 3号地 新築戸建 | 飯塚市幸袋の不動産物件

9万円分の「全国のヤマダデンキで使えるポイント」or「JCBギフトカード」or「65インチTV」or「空気清浄機・ダイソンドライヤー等の家電」or「6畳用エアコン」or「ヤマダデンキ特別優待割引券」≪限定1品≫プレゼント☆
さらに、ご購入相談で来店後、Google口コミ投稿で2000円分のQUOカードプレゼント!※一世帯2回まで
土日祝日もご案内可能です^^
是非一度「ヤマダ不動産」へご相談ください!あらゆる不安や疑問に誠心誠意お応えします^^
平屋住宅!LDK広々18.8帖☆並列駐車2
【新築一戸建て】 新築 駐車場あり オール電化
価格 3,398万円 (税込)
筑豊本線 浦田駅 徒歩40分
スマホ表示
物件コード:117283
所在地 建物面積
土地面積
間取り 築年月
福岡県飯塚市幸袋 101.02m2
249.04m2
4LDK 2025/07

物件基本情報

▲オール電化。平屋住宅。西鉄バス緑ケ丘ハイツ停徒歩5分^^
▲LDK広々18.8帖。生活導線の良い平屋。FLC・SIC・和室有り^^
物件種目 新築一戸建て
物件名称 飯塚市幸袋 3号地 新築戸建
所在地 福岡県飯塚市幸袋
交通
筑豊本線 浦田駅 徒歩40分
後藤寺線 新飯塚駅
バス17分 バス停「緑ケ丘ハイツ」 徒歩5分
階数 1階建
建物構造 木造
建ぺい率/容積率 50% / 60%
駐車場 有 (2台)
学校 幸袋小学校 / 幸袋中学校
設備・条件
  • 汚水:その他
  • 水道:公営水道
  • TVドアホン
  • 追い焚き
  • オール電化
  • 洗浄便座
  • シャンプードレッサー
  • バリアフリー
  • 浴室1坪以上
  • 床下収納
  • 浴室乾燥機
  • オートバス
  • 住宅性能保証付
  • カウンターキッチン
  • IHクッキングヒーター
  • コンロ三口
  • システムキッチン
  • バス・トイレ別
ヤマダ不動産 福岡志免店
Tel092-600-1215
お気軽にお問い合わせください。

画像・写真

  • 並列駐車2台^^角地で陽当たり、風通し良好^^
    並列駐車2台^^角地で陽当たり、風通し良好^^
  • 前面道路。交通量が少なく小さなお子様がいるご家庭でも安心です。
    前面道路。交通量が少なく小さなお子様がいるご家庭でも安心です。
  • 前面道路。角地で陽当たり・風通し良好。
    前面道路。角地で陽当たり・風通し良好。
  • カースペースは並列2台分^^
    カースペースは並列2台分^^
  • ローソン 飯塚東川津店
    ローソン 飯塚東川津店
  • ファミリーマート 飯塚川津
    ファミリーマート 飯塚川津
  • トライアル GO 飯塚幸袋店
    トライアル GO 飯塚幸袋店
  • ハローデイ 九工大前店
    ハローデイ 九工大前店
  • サンドラッグ 九工大前店
    サンドラッグ 九工大前店
  • 飯塚みつき病院
    飯塚みつき病院
  • ホームセンター・グッデイ 飯塚店
    ホームセンター・グッデイ 飯塚店
  • 勝盛公園
    勝盛公園
  • 飯塚市役所
    飯塚市役所
  • 家族が集まる開放的なリビング。思い思いの時間を過ごしたり、家族みんなで食事をしたり、素敵な団らんの場になりますね。
    家族が集まる開放的なリビング。思い思いの時間を過ごしたり、家族みんなで食事をしたり、素敵な団らんの場になりますね。
  • 大きな窓のあるリビングは、陽光あふれる明るい空間です。居心地良く、ご家族皆がゆったり寛げる憩いの空間となりそうです。
    大きな窓のあるリビングは、陽光あふれる明るい空間です。居心地良く、ご家族皆がゆったり寛げる憩いの空間となりそうです。
  • 対面式カウンターキッチンでお子様の様子が見守れます。カウンタートップは耐熱性に優れており、日ごろのお掃除もふき取るだけでOK。ステンレスシンクも簡単にお掃除できますよ。
    対面式カウンターキッチンでお子様の様子が見守れます。カウンタートップは耐熱性に優れており、日ごろのお掃除もふき取るだけでOK。ステンレスシンクも簡単にお掃除できますよ。
  • 広々とした凸型シンクに洗剤ポケットを標準装備。大きなお鍋など洗いやすいです。洗剤や石鹸、スポンジもすっきりできる収納付き。
    広々とした凸型シンクに洗剤ポケットを標準装備。大きなお鍋など洗いやすいです。洗剤や石鹸、スポンジもすっきりできる収納付き。
  • お手入れのしやすいIHクッキングヒーターです。 3口コンロなので、効率よくお料理が楽しめます。毎日のお料理も楽しくなりますね^^
    お手入れのしやすいIHクッキングヒーターです。 3口コンロなので、効率よくお料理が楽しめます。毎日のお料理も楽しくなりますね^^
  • 調理により発生する油煙や臭いを吸い込み、屋外へ排気してくれます。
    調理により発生する油煙や臭いを吸い込み、屋外へ排気してくれます。
  • 家事の時間が短縮できる食器洗浄乾燥機付。後片付けもラクラクです。 食器を洗う手間が減るので家族とのコミュニケーションの時間や自分の時間が増えますね。
    家事の時間が短縮できる食器洗浄乾燥機付。後片付けもラクラクです。 食器を洗う手間が減るので家族とのコミュニケーションの時間や自分の時間が増えますね。
  • 1日の疲れを癒すくつろぎのバスルーム。足を伸ばしてもゆったりと入れるサイズです。お子様と一緒にお風呂に入っても狭くないですね^^
    1日の疲れを癒すくつろぎのバスルーム。足を伸ばしてもゆったりと入れるサイズです。お子様と一緒にお風呂に入っても狭くないですね^^
  • キッチン横パントリー収納。食器やキッチン用品、食料品の保存に便利です^^高さのある物もスッキリ収納できます^^
    キッチン横パントリー収納。食器やキッチン用品、食料品の保存に便利です^^高さのある物もスッキリ収納できます^^
  • 三面鏡つき洗面台。収納も一体型になっているので、ドライヤーやヘアアイロンの置き場に困りませんね。
    三面鏡つき洗面台。収納も一体型になっているので、ドライヤーやヘアアイロンの置き場に困りませんね。
  • 温水洗浄機付トイレです。節水機能もあるので、安心して使えますね。
    温水洗浄機付トイレです。節水機能もあるので、安心して使えますね。
  • たっぷり収納できるシューズボックスです。家族全員の靴がきれいに整頓できます。棚の上にお花や写真を飾っても良いですね。
    たっぷり収納できるシューズボックスです。家族全員の靴がきれいに整頓できます。棚の上にお花や写真を飾っても良いですね。
  • シューズインクローゼットも完備されており、玄関収納も問題ありません。棚の上にお花など飾ってインテリアも楽しめますね。
    シューズインクローゼットも完備されており、玄関収納も問題ありません。棚の上にお花など飾ってインテリアも楽しめますね。
  • リビングからの続き間として和室をご用意しました。普段はリビングとつなげて開放的なスペースとして。来客時には客間としてお使いいただけます。
    リビングからの続き間として和室をご用意しました。普段はリビングとつなげて開放的なスペースとして。来客時には客間としてお使いいただけます。
  • 住む人のこだわりを活かす洋室^^日当たりがよく、寝室としての利用もおすすめ。広めのクローゼットもあり荷物もすっきり片付けれ、ゆとりのある暮らしが出来ます^^
    住む人のこだわりを活かす洋室^^日当たりがよく、寝室としての利用もおすすめ。広めのクローゼットもあり荷物もすっきり片付けれ、ゆとりのある暮らしが出来ます^^
  • ファミリークローゼット。日用品や趣味の道具などの収納に便利です。
    ファミリークローゼット。日用品や趣味の道具などの収納に便利です。
  • 木目調のシンプルデザインで落ち着きと安らぎの空間に仕上げています。各部屋に収納が完備されているので、お荷物が多くなっても安心の設計です。
    木目調のシンプルデザインで落ち着きと安らぎの空間に仕上げています。各部屋に収納が完備されているので、お荷物が多くなっても安心の設計です。
  • 2面採光を確保した明るい室内は、風通しも良く、大変居心地の良い空間となっております。爽やかな風を感じて起きる朝は、快適生活の始まりに。
    2面採光を確保した明るい室内は、風通しも良く、大変居心地の良い空間となっております。爽やかな風を感じて起きる朝は、快適生活の始まりに。
  • 防犯性、セキュリティ対策に安心できるテレビモニター付きインターフォンです。セールスマン対策にもなり安心できます。
    防犯性、セキュリティ対策に安心できるテレビモニター付きインターフォンです。セールスマン対策にもなり安心できます。
  • キッチン横からお湯張り、追い炊き、足し湯がボタン一つで楽々操作できる給湯機リモコンです^^忙しい夕飯の準備の時間帯に重宝しますね。
    キッチン横からお湯張り、追い炊き、足し湯がボタン一つで楽々操作できる給湯機リモコンです^^忙しい夕飯の準備の時間帯に重宝しますね。
  • 雨の日の洗濯も安心できる浴室暖房乾燥機付き浴室。リモコンで操作もボタン1つで簡単。 浴室暖房乾燥機には、暖房、乾燥、涼風、換気の4つの機能が付いています。タイマー付きです。
    雨の日の洗濯も安心できる浴室暖房乾燥機付き浴室。リモコンで操作もボタン1つで簡単。 浴室暖房乾燥機には、暖房、乾燥、涼風、換気の4つの機能が付いています。タイマー付きです。
  • 飯塚市立小中一貫校幸袋校
    飯塚市立小中一貫校幸袋校

コメント

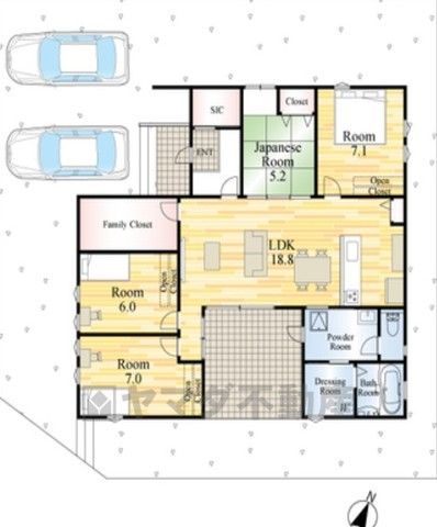
生活導線の良い平屋住宅!LDK広々18.8帖☆並列駐車2台♪WIC・FLC・和室・洗面室収納有^^
■西鉄バス「緑ケ丘ハイツ」停徒歩5分!
■イオン穂波ショッピングセンターまで車で約11分♪(3.3km)
■スーパー・コンビニ・ドラッグストアまで徒歩15分圏内^^周辺環境充実!
◇幸袋小学校:徒歩約17分
◇幸袋中学校:徒歩約17分

☆年間1600件の相談実績☆
頭金0円可能!月々の返済がご不安な方!もっと良い条件を引き出したい方!すでにお借入のある方!など、住宅ローンのお悩みをこれまでにたくさんお受けしてきました^^
お客様に合った金融機関のご提案や、将来を見越した無理のないご返済プランの作成もしています!ぜひ一度ご相談下さい^^

周辺地図

地図を表示中...
ストリートビュー未対応エリアです。

物件詳細情報

物件用途 居住用 地目 宅地
間取り詳細 LDK18.8畳(1F)、和5.2畳(1F)、洋7.1畳(1F)、洋7畳(1F)、洋6畳(1F) 都市計画 非線引区域
建物向き 南東 用途地域 第一種低層住居専用地域
土地面積基準 実測 接道 公道 南東 幅員5m (接面11m)
公道 南西 幅員5m (接面13.3m)
土地権利 所有権 私道面積 -
借地条件 - 道路位置指定 -
地代 - 不適合接道 -
建築確認番号 - セットバック -
現況 空家 国土法届出 不要
引渡時期 即引き渡し可 取引態様 一般
設備その他 -
特記事項 -
備考 -
情報更新日 2025/10/10 広告有効期限 2025/11/10
電話でお問い合わせ
ヤマダ不動産 福岡志免店 店舗情報
[所在地] 福岡県糟屋郡志免町志免中央4丁目2番3号
[営業時間] 10:00~19:00(定休日:水曜日)
Tel092-600-1215
お気軽にお問い合わせください。